富成国际

| 形式 |
供給能力(T/Hr) |
出力(kW) |
トラフ寸法 |
重量(kg) |
適用制御器 |
| 鉄鉱石 |
砂 |
石 炭 |
幅×長さ(mm) |
| RFH- 10A |
150 |
130 |
60 |
0.2 |
450× 800 |
100 |
CA- 2FR |
| RFH- 20A |
250 |
210 |
100 |
0.4 |
600×1000 |
200 |
CA- 4FR |
| RFH- 45A |
450 |
370 |
180 |
0.75 |
800×1200 |
400 |
CA- 7FR |
| RFH- 60A |
650 |
530 |
260 |
1.5 |
900×1500 |
600 |
CA- 15FR |
| RFH- 85B |
800 |
680 |
350 |
2.2 |
1100×1500 |
800 |
CA- 22FR |
| RFH- 160B |
1200 |
1100 |
600 |
3.7 |
1300×1650 |
1600 |
CA- 37FR |
| RFH- 260B |
1700 |
1500 |
900 |
5.5 |
1500×1800 |
2600 |
CA- 55FR |
| RFH- 350B |
2200 |
1800 |
1100 |
7.5 |
1800×2000 |
3400 |
CA- 75FR |
| RFH- 500B |
3000 |
2500 |
1500 |
11 |
2200×2200 |
5000 |
CA-110FR |
| RFH- 700B |
3800 |
3100 |
2000 |
15 |
2400×2400 |
7000 |
CA-150FR |
| RFH-1000B |
5000 |
4000 |
2600 |
22 |
2600×2600 |
10000 |
CA-220FR |
| RFH-1500B |
6100 |
5000 |
3200 |
22 |
2800×2800 |
13000 |
CA-220FR |
随着粉粒体生产设备的效率化,高精密化,使用的给料机不仅需要材料的排出?供给,还需要可以满足对后续流程的快速流量,广范围变化的高性能的产品。 SINFONIA TECHNOLOGY CO., LTD. 为了满足这些粉粒体的产业界的需求,应用独自的振动技术的振动给料机,为广大客户提供各种机型,受到极高的信赖。SINFONIA TECHNOLOGY CO., LTD. 从多年的振动技术和丰富的业绩,振动给料机带给各种生产线的合理化和生产率的提高。 我们多年研究振动的输送现象,开发了利用电磁线圈的电磁给料机和利用不平衡板块的旋转产生振动的橡胶弹簧给料机和RV振动电机给料机的3机型。选型的时候我们根据多年给粉粒体生产线提供的业绩和严厉的试验数据,充分考虑材料的形状,性质,供给量,安装条件,运转条件,料斗的形状,工厂环境等条件选定最合适的振动给料机。

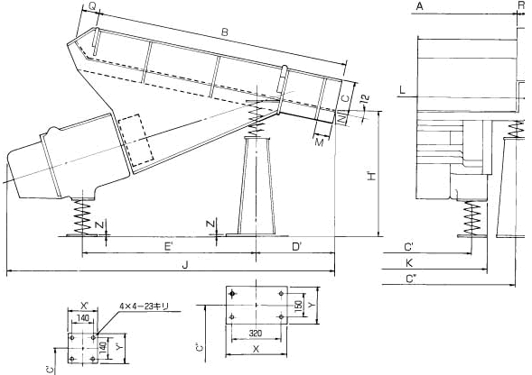
| 形式 |
A |
B |
C |
※D |
※E |
※F |
※G |
※H |
※J |
K |
※L |
| RFH-160B |
1300 |
1650 |
200 |
320 |
1500 |
820 |
1380 |
600 |
2140 |
930 |
1480 |
| RFH-260B |
1500 |
1800 |
250 |
435 |
1730 |
990 |
1620 |
720 |
2510 |
1180 |
1770 |
| RFH-350B |
1800 |
2000 |
300 |
330 |
2030 |
1140 |
1700 |
670 |
2710 |
1280 |
2090 |
| RFH-500B |
2200 |
2200 |
350 |
420 |
2230 |
1230 |
2100 |
710 |
3060 |
1430 |
2530 |
| RFH-700B |
2400 |
2400 |
350 |
425 |
2460 |
1340 |
2100 |
710 |
3360 |
1900 |
2730 |
| RFH-1000B |
2600 |
2600 |
400 |
420 |
2760 |
1610 |
2210 |
780 |
3690 |
2140 |
2930 |
| RFH-1500B |
2800 |
2800 |
400 |
511 |
2909 |
1595 |
2290 |
865 |
3940 |
2140 |
3130 |
| 形式 |
M |
N |
P |
Q |
R |
吊 下 形 寸 法 |
| S |
T |
U |
V |
t |
t' |
W |
| RFH-160B |
100 |
87 |
1524 |
100 |
70 |
Φ25 |
R40 |
22 |
2-Φ40 |
50 |
R50 |
1600 |
| RFH-260B |
150 |
112 |
1804 |
125 |
75 |
Φ32 |
R50 |
25 |
2-Φ45 |
50 |
R65 |
1900 |
| RFH-350B |
100 |
112 |
2104 |
150 |
85 |
Φ38 |
R50 |
32 |
2-Φ50 |
100 |
R70 |
2200 |
| RFH-500B |
150 |
164 |
2548 |
175 |
90 |
32 |
2-Φ65 |
32 |
2-Φ65 |
100 |
R100 |
2650 |
| RFH-700B |
150 |
165 |
2748 |
175 |
90 |
38 |
2-Φ65 |
38 |
2-Φ65 |
120 |
R100 |
2786 |
| RFH-1000B |
150 |
172 |
3028 |
200 |
100 |
50 |
2-Φ75 |
50 |
2-Φ75 |
120 |
R120 |
3180 |
| RFH-1500B |
150 |
172 |
3228 |
200 |
100 |
50 |
2-Φ75 |
50 |
2-Φ75 |
120 |
R120 |
3180 |

| 形式 |
A |
B |
C |
※D |
※E |
※F |
※G |
※H |
※J |
K |
※L |
M |
| RFH-160B |
1300 |
1650 |
200 |
320 |
1500 |
820 |
1380 |
600 |
2140 |
930 |
1480 |
100 |
| RFH-260B |
1500 |
1800 |
250 |
435 |
1730 |
990 |
1620 |
720 |
2510 |
1180 |
1770 |
150 |
| RFH-350B |
1800 |
2000 |
300 |
330 |
2030 |
1140 |
1700 |
670 |
2710 |
1280 |
2090 |
100 |
| RFH-500B |
2200 |
2200 |
350 |
420 |
2230 |
1240 |
2100 |
710 |
3060 |
1430 |
2530 |
150 |
| RFH-700B |
2400 |
2400 |
350 |
425 |
2460 |
1340 |
2100 |
710 |
3360 |
1900 |
2730 |
150 |
| RFH-1000B |
2600 |
2600 |
400 |
420 |
2760 |
1610 |
2210 |
780 |
3690 |
2140 |
2930 |
150 |
| RFH-1500B |
2800 |
2800 |
400 |
511 |
2909 |
1595 |
2290 |
865 |
3940 |
2140 |
3130 |
150 |
| 形式 |
N |
P |
Q |
R |
据置形寸法 |
| ※H' |
※E' |
※D' |
C' |
C" |
X |
Y |
X' |
Y' |
Z |
| RFH-160B |
87 |
1524 |
100 |
70 |
825 |
1120 |
510 |
730 |
1300 |
400 |
250 |
200 |
200 |
9 |
| RFH-260B |
112 |
1804 |
125 |
75 |
835 |
1320 |
620 |
900 |
1600 |
400 |
250 |
200 |
200 |
9 |
| RFH-350B |
112 |
2104 |
150 |
85 |
930 |
1630 |
540 |
1030 |
1900 |
400 |
250 |
210 |
210 |
9 |
| RFH-500B |
164 |
2548 |
175 |
90 |
950 |
1580 |
830 |
1080 |
2160 |
460 |
460 |
260 |
460 |
12 |
| RFH-700B |
166 |
2748 |
175 |
90 |
925 |
1870 |
850 |
1500 |
2600 |
460 |
460 |
260 |
460 |
12 |
| RFH-1000B |
172 |
3028 |
200 |
100 |
1120 |
2120 |
810 |
1500 |
2800 |
460 |
460 |
260 |
460 |
12 |
| RFH-1500B |
172 |
3228 |
200 |
100 |
1120 |
2120 |
810 |
1500 |
2800 |
460 |
460 |
260 |
460 |
12 |

形式
|
質量
(kg) |
電流容量(A) |
流量調整
装置付 |
全電圧起動
装置付 |
逆相制動
装置付 |
適用負荷 |
| 200/220V |
400/440V |
| CA- 2FR |
36 |
2 |
2 |
○ |
○ |
○ |
RFH-10A |
| CA- 4FR |
36 |
3 |
2 |
○ |
○ |
○ |
RFH-20A |
| CA- 7FR |
46 |
4 |
2 |
○ |
○ |
○ |
RFH-45A |
| CA- 15FR |
55 |
7 |
4 |
○ |
○ |
○ |
RFH-60A |
| CA- 22FR |
55 |
10 |
5 |
○ |
○ |
○ |
RFH-85B |
| CA- 37FR |
98 |
15 |
8 |
○ |
○ |
○ |
RFH-160B |
| CA- 55FR |
110 |
21 |
11 |
○ |
○ |
○ |
RFH-260B |
| CA- 75FR |
145 |
28 |
14 |
○ |
○ |
○ |
RFH-350B |
| CA-110FR |
160 |
43 |
22 |
○ |
○ |
○ |
RFH-500B |
| CA-150FR |
300 |
51 |
27 |
○ |
○ |
○ |
RFH-700B |
| CA-220FR |
320 |
81 |
41 |
○ |
○ |
○ |
RFH-1000B
RFH-1500B |
Sinfonia Vibrating equipments use the force of vibration to transport and supply parts and materials. A variety of compact vibrators, vibrating conveyors and electromagnetic feeders are used as transport devices that enhance the efficiency of powder processes. Our varieties of vibrating equipments are not only used for conveying materials but also screening. We enjoy an excellent reputation as a top supplier of vibrating equipments used in a wide range of industries including foods, chemicals and garbage disposals. There are many reasons why our vibrating equipments are preferred, and one main reason is our vibrating equipments realize high efficiency conveyance with very low cost.